Komplette Grünruhelage im Gersthofer Cottage: Gartenausblick von 2 Zimmer Altbauwohnung mit Balkon-Option
Die beliebte Gersthofer Cottage-Lage besticht durch die grüne Umgebung in gepflegter Nachbarschaft und lockerer Bebauung mit Mehrfamilienhäusern, Villen und Altbaumbestand.
In Gehweite zum Gersthofer Zentrum genießen Sie hier den Ausblick direkt ins Grüne und gleichzeitig den Vorteil einer ausgezeichneten Infrastruktur nur wenige Minuten Fußweg entfernt.
Das Wohngebäude von 1932 mit funktionalem Design und jeweils 3 Wohnungen pro Etage wurde 2011 im Zuge eines Dachgeschoß-Ausbaus in den Allgemeinbereichen renoviert. Ein barrierefrei erreichbarer 4-5 Personen-Lift wurde errichtet und die Außenfassade rundum gedämmt. Trockener Keller im EG mit neu geschaffenen Abteilen (übl. Alugitter-Abtrennungen, Estrich). 2 Fahrrad-Abstellbereiche im versperrten Hauskeller i EG vorhanden.
Als großes Plus ist der im Altbau nicht alltägliche Zugang OHNE Zwischenstufen zur Liegenschaft, ins Gebäude und zum Lift zu erwähnen: Eine sanft abfallende Rampe führt zum Haus, modernes u. breites Aluminium-Portal mit Gegensprechanlage, Lift ab dem EG zu den einzelnen Etagen ohne Hürden wie Stufen o.ä. u. groß genug für den Zutritt mit Gehhilfe.
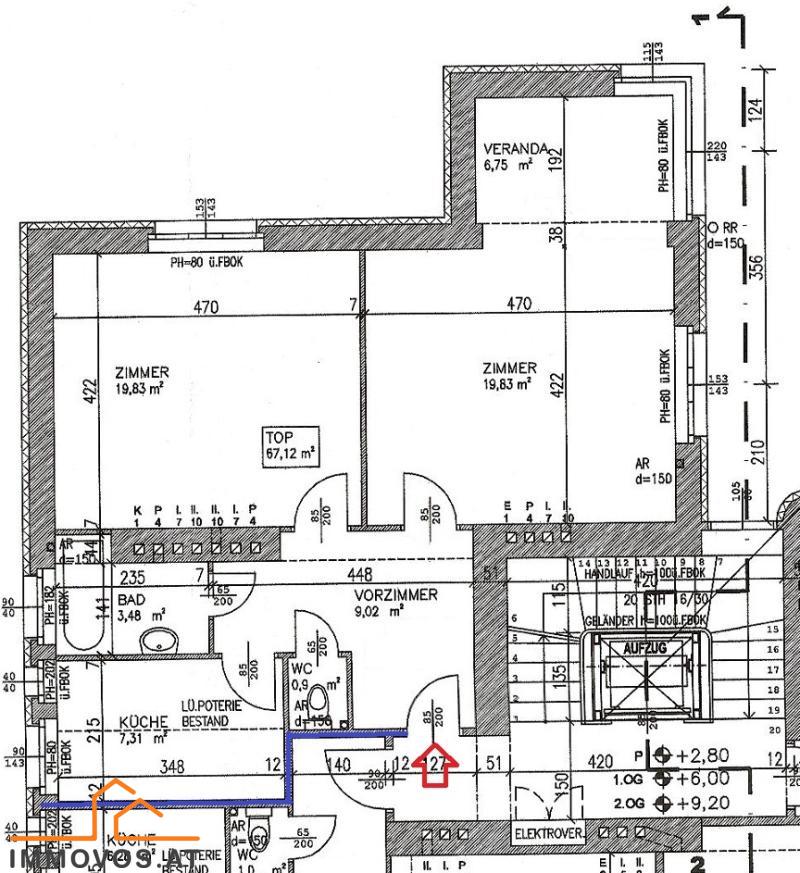
Kurz gefasst: ca. 66 m2 Wohnfläche im 1. Liftstock, Ausrichtung Ost/West, 2 getrennt begehbare Zimmer in Hoflage mit Ausblick in den Garten + helle Küche extra mit Einbauküche, Tageslicht/Außenfenster, zentrale Begehbarkeit aller Räume über den Vorraum, Bad mit Wanne, Waschplatz u. Außenfenster, sep. WC.
Noch originale schöne Eiche-Parkettböden in den beiden Zimmern, moderne Kunststoff-Fenster mit Isolierverglasung, Küchenboden mit PVC-Belag, Sanitärbereiche verfliest, angenehme Raumhöhe von ca. 2,7 m.
Der Anbau eines zur Ostseite ausgerichteten Balkones ist möglich, die erforderliche Zustimmung ist durch eine zu diesem Zweck getroffene gesonderte Vereinbarung zeitsparend erzielbar. Das gestaltet den Ablauf weniger kompliziert als sonst üblich. Entwurf + Kostenschätzung eines heimischen Baumeisters für den Balkonanbau liegt vor.
Der hübsche Gemeinschaftsgarten rund um das Gebäude wird von einer Mieterin liebevoll gepflegt, er kann von den Eignern u. Mietern gemeinschaftlich genützt werden. Hier können Sie im Schatten großer Altbäume relaxen oder ein Hochbeet anlegen.
Die WE-Begründung (Wohnungseigentum in Vorbereitung) ist durch den Abverkauf zweier Einheiten an bestehende Mieter erfolgt. Das WE-Statut u. das Nutzwertgutachten liegen naturgemäß bereits vor.
Geplant ist vom WE-Organisator mit Jahresanfang 2026 (zu den verkehrsüblichen Betriebskosten) die Beiträge zur Rücklage einzuheben, die aufgrund gesetzlicher Erfordernisse in Höhe von EUR 1,13 (ab 1.1.2026) pro m2 zu bilden ist (valorisiert).
Die Heizung erfolgt über eine Gas-Kombi-Therme älterer Bauart mit Radiatoren, eine Erneuerung der Therme wäre zu überlegen, der Wechsel zu einer Fußbodenheizung ist realisierbar.
Die Parkettböden könnten abgeschliffen u. für ein helleres Erscheinungsbild neu lackiert werden.
Die Küche ist nach wie vor funktionsfähig, eine Modernisierung bzw. eine Nachrüstung mit mehr Stauraum wäre anzuraten. Platz für eine Küche in U-Form mit mehr Arbeitsfläche und Schränken ist jedenfalls ausreichend vorhanden. Modernisierung von Bad u. sep. WC (zB. mit Tiefspüler) ratsam.
Im Bereich der Elektrik besteht Nachrüstungsbedarf (u.a. mehr Steckdosen für heutige Anforderungen).
Begehrter Kaufpreis: VB EUR 415.000,--
Zum erzielten Kaufpreis kommt unser Vermittlungshonorar von 3 % + 20 USt. (brutto 3,6 %) hinzu sowie die bei Kaufabwicklung üblichen Kaufnebenkosten. Wir weisen darauf hin, dass dzt. unter bestimmten Voraussetzungen die Eintragungsgebühr in Höhe von 1,1 % nicht zum Tragen kommt.
Rund um den Gersthofer Platz mit der S-45-Station und seinen zahlreichen Geschäften findet sich alles Nötige für Ihren täglichen Einkauf. Kulinarisch sind alle gängigen Richtungen vertreten, vom frz. Bistro über das klassische Cafe bis zur Wiener Küche.
Mehrere Supermärkte, Konditorei u. Bäckerei, Apotheke, Drogerie-Märkte, einige Fachgeschäfte (Elektro u.a.), Fleischerei, mehrere Arztpraxen u. ein Diagnose-Zentrum, Boutiquen, Kosmetikerin/Friseur, Blumenladen, uvm. warten ihren KundInnen mit einem hochwertigen Angebot auf.
Die Busstationen der Linie 10A in beide Richtungen erreichen Sie in lediglich 1 min., dort hält auch die Linie 42A.
Nur 1 Station bis zum Gersthofer Platz oder als kurzer Fußweg gut bewältigbar.
Wenn Sie in grüner u. gleichzeitig zentraler Gersthofer Lage wohnen möchten, lohnt sich der Blick auf dieses Angebot! Ihr Kontakt für weitere Informationen oder einen Termin: Maria Zeiler, Tel. 0664 142 57 35
Durch die laufende Geschäftstätigkeit für den Abgeber dürfen wir auf das wirtschaftliche Naheverhältnis zum Abgeber hinweisen. Es bestehen jedoch keine personellen oder gesellschaftsrechtlichen Verflechtungen.
Wir sind als Doppelmakler tätig.
Für KonsumentInnen gilt:
Durch das Inkrafttreten des Fern- und Auswärtsgeschäftegesetzes (FAGG/VRUG) können wir Ihnen erst nach Ihrer Zustimmung zum Verzicht auf die darin festgelegte 14-tägige Rücktrittsfrist bzw. Ihre Bestätigung, dass Sie unser vorzeitiges Tätigwerden wünschen, die Detailunterlagen zu diesem unverbindlichen Immobilienangebot mit Adresse zusenden.
Daher erhalten Sie vorab eine gesonderte Nachricht mit allen Informationen zum FAGG, in der Sie uns diese Zustimmung erteilen können.
Erst nach Erhalt senden wir Ihnen gerne die gewünschten Informationen zu diesem Angebot bzw. geben wir Ihnen die Adresse bekannt, bitte um Verständnis!
Es entstehen Ihnen keine zusätzlichen Kosten durch Ihre erteilte Zustimmung, unser Anspruch auf die vereinbarte Vermittlungsprovision entsteht erst bei einem von uns erfolgreich vermittelten Geschäftsabschluss bzw. bei dessen Rechtswirksamkeit.
In Gehweite zum Gersthofer Zentrum genießen Sie hier den Ausblick direkt ins Grüne und gleichzeitig den Vorteil einer ausgezeichneten Infrastruktur nur wenige Minuten Fußweg entfernt.
Das Wohngebäude von 1932 mit funktionalem Design und jeweils 3 Wohnungen pro Etage wurde 2011 im Zuge eines Dachgeschoß-Ausbaus in den Allgemeinbereichen renoviert. Ein barrierefrei erreichbarer 4-5 Personen-Lift wurde errichtet und die Außenfassade rundum gedämmt. Trockener Keller im EG mit neu geschaffenen Abteilen (übl. Alugitter-Abtrennungen, Estrich). 2 Fahrrad-Abstellbereiche im versperrten Hauskeller i EG vorhanden.
Als großes Plus ist der im Altbau nicht alltägliche Zugang OHNE Zwischenstufen zur Liegenschaft, ins Gebäude und zum Lift zu erwähnen: Eine sanft abfallende Rampe führt zum Haus, modernes u. breites Aluminium-Portal mit Gegensprechanlage, Lift ab dem EG zu den einzelnen Etagen ohne Hürden wie Stufen o.ä. u. groß genug für den Zutritt mit Gehhilfe.
Kurz gefasst: ca. 66 m2 Wohnfläche im 1. Liftstock, Ausrichtung Ost/West, 2 getrennt begehbare Zimmer in Hoflage mit Ausblick in den Garten + helle Küche extra mit Einbauküche, Tageslicht/Außenfenster, zentrale Begehbarkeit aller Räume über den Vorraum, Bad mit Wanne, Waschplatz u. Außenfenster, sep. WC.
Noch originale schöne Eiche-Parkettböden in den beiden Zimmern, moderne Kunststoff-Fenster mit Isolierverglasung, Küchenboden mit PVC-Belag, Sanitärbereiche verfliest, angenehme Raumhöhe von ca. 2,7 m.
Der Anbau eines zur Ostseite ausgerichteten Balkones ist möglich, die erforderliche Zustimmung ist durch eine zu diesem Zweck getroffene gesonderte Vereinbarung zeitsparend erzielbar. Das gestaltet den Ablauf weniger kompliziert als sonst üblich. Entwurf + Kostenschätzung eines heimischen Baumeisters für den Balkonanbau liegt vor.
Der hübsche Gemeinschaftsgarten rund um das Gebäude wird von einer Mieterin liebevoll gepflegt, er kann von den Eignern u. Mietern gemeinschaftlich genützt werden. Hier können Sie im Schatten großer Altbäume relaxen oder ein Hochbeet anlegen.
Die WE-Begründung (Wohnungseigentum in Vorbereitung) ist durch den Abverkauf zweier Einheiten an bestehende Mieter erfolgt. Das WE-Statut u. das Nutzwertgutachten liegen naturgemäß bereits vor.
Geplant ist vom WE-Organisator mit Jahresanfang 2026 (zu den verkehrsüblichen Betriebskosten) die Beiträge zur Rücklage einzuheben, die aufgrund gesetzlicher Erfordernisse in Höhe von EUR 1,13 (ab 1.1.2026) pro m2 zu bilden ist (valorisiert).
Die Heizung erfolgt über eine Gas-Kombi-Therme älterer Bauart mit Radiatoren, eine Erneuerung der Therme wäre zu überlegen, der Wechsel zu einer Fußbodenheizung ist realisierbar.
Die Parkettböden könnten abgeschliffen u. für ein helleres Erscheinungsbild neu lackiert werden.
Die Küche ist nach wie vor funktionsfähig, eine Modernisierung bzw. eine Nachrüstung mit mehr Stauraum wäre anzuraten. Platz für eine Küche in U-Form mit mehr Arbeitsfläche und Schränken ist jedenfalls ausreichend vorhanden. Modernisierung von Bad u. sep. WC (zB. mit Tiefspüler) ratsam.
Im Bereich der Elektrik besteht Nachrüstungsbedarf (u.a. mehr Steckdosen für heutige Anforderungen).
Begehrter Kaufpreis: VB EUR 415.000,--
Zum erzielten Kaufpreis kommt unser Vermittlungshonorar von 3 % + 20 USt. (brutto 3,6 %) hinzu sowie die bei Kaufabwicklung üblichen Kaufnebenkosten. Wir weisen darauf hin, dass dzt. unter bestimmten Voraussetzungen die Eintragungsgebühr in Höhe von 1,1 % nicht zum Tragen kommt.
Rund um den Gersthofer Platz mit der S-45-Station und seinen zahlreichen Geschäften findet sich alles Nötige für Ihren täglichen Einkauf. Kulinarisch sind alle gängigen Richtungen vertreten, vom frz. Bistro über das klassische Cafe bis zur Wiener Küche.
Mehrere Supermärkte, Konditorei u. Bäckerei, Apotheke, Drogerie-Märkte, einige Fachgeschäfte (Elektro u.a.), Fleischerei, mehrere Arztpraxen u. ein Diagnose-Zentrum, Boutiquen, Kosmetikerin/Friseur, Blumenladen, uvm. warten ihren KundInnen mit einem hochwertigen Angebot auf.
Die Busstationen der Linie 10A in beide Richtungen erreichen Sie in lediglich 1 min., dort hält auch die Linie 42A.
Nur 1 Station bis zum Gersthofer Platz oder als kurzer Fußweg gut bewältigbar.
Wenn Sie in grüner u. gleichzeitig zentraler Gersthofer Lage wohnen möchten, lohnt sich der Blick auf dieses Angebot! Ihr Kontakt für weitere Informationen oder einen Termin: Maria Zeiler, Tel. 0664 142 57 35
Durch die laufende Geschäftstätigkeit für den Abgeber dürfen wir auf das wirtschaftliche Naheverhältnis zum Abgeber hinweisen. Es bestehen jedoch keine personellen oder gesellschaftsrechtlichen Verflechtungen.
Wir sind als Doppelmakler tätig.
Für KonsumentInnen gilt:
Durch das Inkrafttreten des Fern- und Auswärtsgeschäftegesetzes (FAGG/VRUG) können wir Ihnen erst nach Ihrer Zustimmung zum Verzicht auf die darin festgelegte 14-tägige Rücktrittsfrist bzw. Ihre Bestätigung, dass Sie unser vorzeitiges Tätigwerden wünschen, die Detailunterlagen zu diesem unverbindlichen Immobilienangebot mit Adresse zusenden.
Daher erhalten Sie vorab eine gesonderte Nachricht mit allen Informationen zum FAGG, in der Sie uns diese Zustimmung erteilen können.
Erst nach Erhalt senden wir Ihnen gerne die gewünschten Informationen zu diesem Angebot bzw. geben wir Ihnen die Adresse bekannt, bitte um Verständnis!
Es entstehen Ihnen keine zusätzlichen Kosten durch Ihre erteilte Zustimmung, unser Anspruch auf die vereinbarte Vermittlungsprovision entsteht erst bei einem von uns erfolgreich vermittelten Geschäftsabschluss bzw. bei dessen Rechtswirksamkeit.
Überblick
Objekt ID:
46774
Bundesland:
Wien
Bezirk:
Wien 18.,Währing
Ort:
Wien 18.,Währing
Lage:
unweit Gersthofer Zentrum
Verkehrsanbindung:
S-45 Gersthof, Busse 10A u. 42A, Linien 40, 41, 9
Kosten
Preis:
€ 415.000,00
Betriebskosten (ex. USt):
€ 152,76
Liftbetriebskosten (ex. USt):
€ 23,07
mtl. Kosten (inkl. USt.):
€ 193,42
Provision:
3 % vom Kaufpreis zzgl. 20 % USt.
Flächen
Wohnfläche ca.:
66,00 m²
Kellerfläche ca:
1,50 m²
Detaildaten
Verfügbar ab:
ab sofort
Baujahr:
1932
Zimmer:
2
Geschosse:
4
Stockwerk:
1
Bäder:
1
Anzahl WCs:
1
Alter:
Altbau
Heizung:
Etagenheizung
Befeuerung:
Gas
Heizwärmebedarf:
39,14 kWH/m²/Jahr
fGEE:
1,07
Boden:
Parkett
Boden:
Fliesen
Ausstattung:
Barrierefrei
Einbauküche
Lift
Keller
Kabel oder Sat TV
Fahrradraum
Isolierfenster
Gartennutzung
Kamin




